Mixed use space

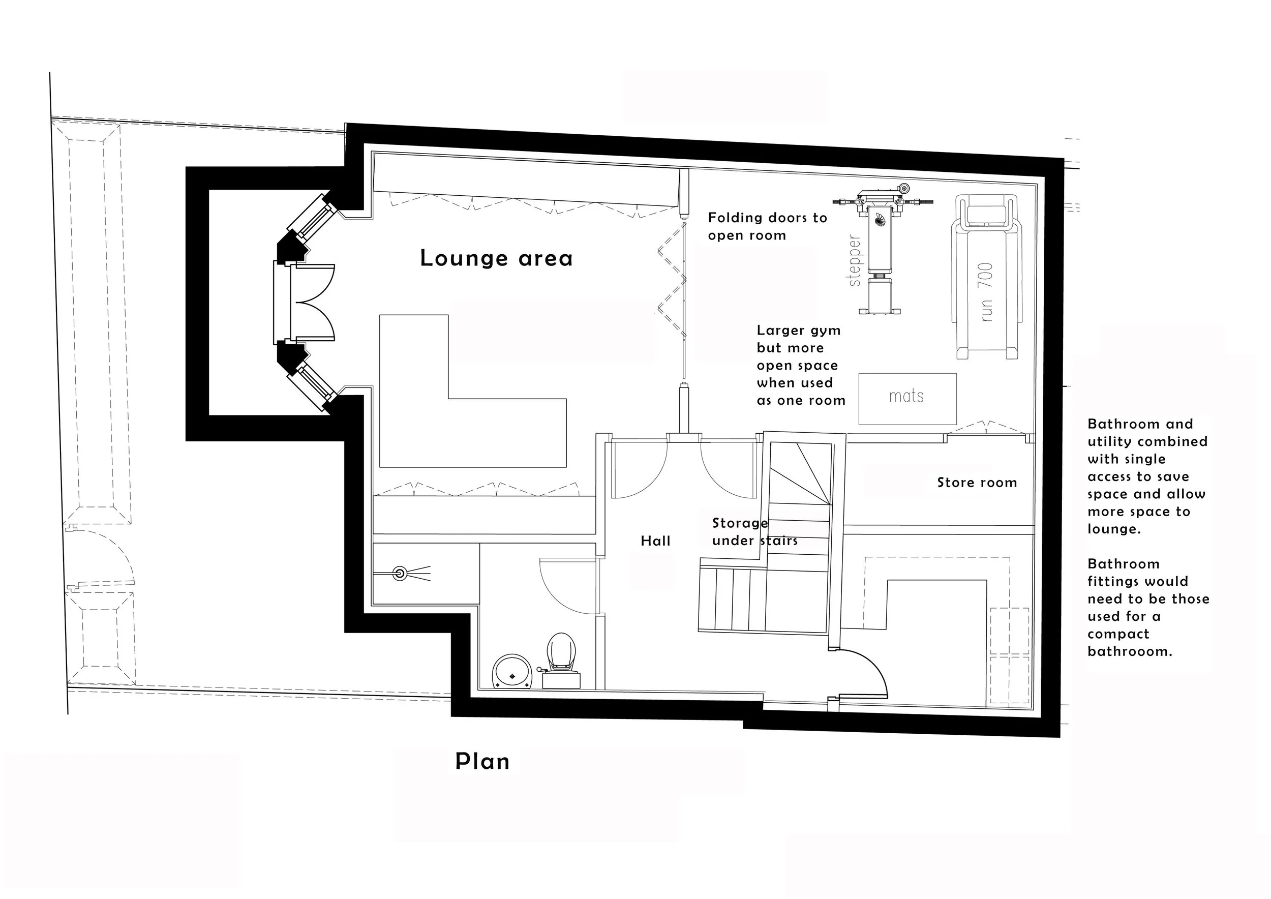
Designing a space to serve multiple functions is one of the smartest ways to make the most of a small footprint. In this project, we combined a lounge, compact gym, bathroom, and storage, all in one room, using clever joinery and subtle dividing walls to keep it functional and inviting.

Previous
Previous

London Flat Refresh

Next
Next

Apartment Redesign & Declutter